BUSINESS業務内容

河川構造物 (水門、排水機場、柔構造樋門、頭首工、防潮堤陸閘)

当社では、河川構造物の耐震照査および耐震設計を主に行っています。河川構造物としては、水門・排水機場・柔構造樋門・頭首工・防潮堤陸閘等を行っています。
これらの構造物に対して、道路橋示方書や河川構造物の耐震性能照査指針等に示されている計算手法である「地震時保有巣平耐力法」や「動的解析法」を用いて、静的解析・動的解析の業務を行っています。
国土強靱化に資するために、耐震補強設計を行い、各種構造物を安心・安全に使用出来るように、耐震補強設計業務を行っています。

河川構造物の耐震性能照査指針に基づいた水門の耐震照査

固有値解析モデル図
プッシュオーバー骨組図
プッシュオーバーソリッド図

破壊形態の判定を行い、地震時保有水平耐力法にて、照査

固有値解析結果
水流方向【2次モード】

固有値解析を行い、固有周期より、 khcを設定

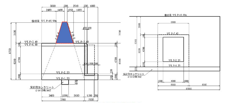
河川構造物の耐震性能照査指針に基づいた柔構造樋門の縦断方向 L2地震時照査

ソリッド図
曲げ照査【赤印NG】

2次元解析で、重力式擁壁部の荷重を見込むと安全側の設計になるため、許容値を 超過してしまう。
そこで、3次元FEM解析で、局所部の荷重状態を再現し、2次元解析の頂版断面力以下 になることを検証した。

防潮堤陸閘の特殊解析事例

構造図
FEMモデル図
重力式荷重載荷図
断面力図
頭首工モデル例